ようこそ ゲスト 様

宮崎市権現町 マンション(1LDK)

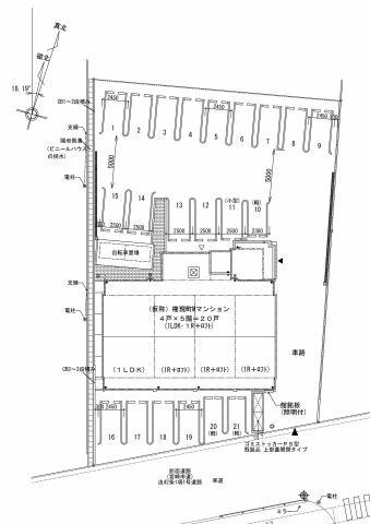
仮)権現町Mマンション

お問い合わせ番号:116601-12030c
マンション
宮崎市権現町
仮)権現町Mマンション の空室状況はこちら
日豊本線 宮崎神宮 ( 徒歩 16分 )
賃料 6.70万円
間取り 1LDK
洋 5.5帖 / LDK 9.2帖
権現通り沿いの5階建てエレベーター付きマンション。インターネット月額使用料無料。オートロック・防犯カメラ・モニターホン付きでセキュリティーに配慮。周辺は商業施設も近く住みよい環境です。都市ガスなので光熱費が抑えられるところがオススメポイントです
管理費 -
-
保証金
解約引
-
-
敷金
礼金
1.5ヶ月
-
駐車場 有り有料
(5,500円)
面積 38.22m2 築年月 2026年8月
(令和8年8月)
所在階 5階 地上階数 5階 地下階数 -
構造 鉄筋コンクリート造(RC)
現況 建築中
入居/引渡 期日指定 
引渡年月 2026年08月下旬
取引 仲介
■周辺環境:コープみやざき柳丸店(553m) / セブンイレブン宮崎権現町店(618m) / ディスカウントドラッグコスモス柳丸店(154m) / ドン・キホーテ宮崎店(716m) / フェニックスガーデンうきのじょう(835m) / 宮崎江平郵便局(702m)

仮)権現町Mマンション 周辺地図

仮)権現町Mマンション のことならお気軽にご相談ください。
センチュリー21エージェントステップ
TEL:0985-72-5000
営業時間:9:00~18:00
定休日 :年中無休(年末年始,夏季休暇,GW除く)
メールでのお問い合わせ

お電話の場合は物件番号 < 116601-12030c > を伝えていただくとスムーズにお応えできます。

非公開物件情報
一般公開物件
1,755
会員用非公開物件
171
  • ログイン
  • 新規登録
    ☆2026春の住み替え応援フェア開催☆
    【期間】2026年1月10日(土)~3月8日(日)
    ご成約者様(売買、賃貸)・ご来店者様の中から抽選で210名様に家電など商品をプレゼント♪
    お気軽にお問い合わせください(*^_^*)/

    ★売買物件最新情報★
    【セフィーロ清水】
    インターネット無料☆女性限定オートロック付マンション!防犯カメラ・モニターホンもついておりセキュリティ安心!スーパーが近く、夜遅い帰宅時のお買い物も安心です!インターネット無料&鹿児島放送2局視聴無料!
    お気軽にお問い合わせください(*^_^*)/


    ★売買物件最新情報★
    【クレコマンション】
    ●ペット不可●リビングから大淀川を見渡せ、夏は花火を間近で見られます♪●リフォーム済(浴室・洗面台入れ替え、クロス)●オートロック●宮崎中心部へのアクセスも良好です●公営水道・オール電化
    お気軽にお問い合わせください(*^_^*)/


    ★売買物件最新情報★
    【佐土原町下田島中古】
    ◇約99坪のゆとりある土地!車3台駐車可能。収納豊富なキッチンは料理がしやすい環境です。オール電化住宅。吹抜けのリビングは解放感があり、明るいお部屋です♪JR佐土原駅まで徒歩約29分・車で約8分☆
    お気軽にお問い合わせください(*^_^*)/


    ★賃貸最新空室情報★
    ☆Alte Meister中津瀬☆
    自宅でお仕事される方は生活スペースと仕事スペースとしてお使いいただける二部屋の物件です♪お気軽にお問い合わせください(*^_^*)♪/

    ★賃貸最新空室情報★
    ☆南国ビル☆
    最上階オーナーズルーム・離れあり☆徒歩圏内にスーパー・コンビニ・ドラッグストアなど生活に便利なお店が揃っています♪お気軽にお問い合わせください(*^_^*)♪/

    ★売買物件最新情報★
    【大塚町無量寺道下中古】
    ◇築浅で状態良好!白とブルーの爽やかなコントラストが映える明るく開放的な空間☆
    お気軽にお問い合わせください(*^_^*)/


    ★賃貸最新空室情報★
    ☆宮崎ミッドタウンサウスタワー☆
    インターネット無料&Wi-Fiルーター完備!オートロック+防犯カメラ6台有でセキュリティーも安心(*^_^*)♪/

    ★賃貸最新空室情報★
    ☆Frieden☆
    2024年3月完成予定の築浅メゾネットです!ゆとりのある広さ740坪の敷地に一般住宅と同様の仕様。駐車場2台付。キッチンは広々2550サイズ、1坪タイプの広々浴室、浴室乾燥機、追い焚き付。セキスイハイムブランドの高級戸建賃貸住宅!高気密断熱性能住宅【アルミ樹脂複合サッシ・ハイカットペアガラスを採用しており暑さ寒さが室内に伝わりづらい仕様】です。B棟、C棟は防音室完備(*^_^*)/

    ★売買物件最新情報★
    【西都市新町1丁目中古】
    ◇省令準耐火仕様×長期優良住宅×全熱交換型24H換気を備えた令和5年8月築の築浅物件♪
    お気軽にお問い合わせください(*^_^*)/


    ★売買物件最新情報★
    【大塚町無量寺道下中古】
    ◇築浅で状態良好!白とブルーの爽やかなコントラストが映える明るく開放的な空間☆
    お気軽にお問い合わせください(*^_^*)/


    ★賃貸最新空室情報★
    ☆レーベン宮崎ONE TOWER☆
    宮崎初新築分譲タワーマンション!ゲストルーム・フィットネスジム完備!浄水システム付きなので生活水は全ていつでもきれいで美味しい水です♪インターネットも無料でご利用いただけます☆オートロック、防犯カメラ、宅配ボックス完備!宮崎駅やデパート、スーパー、コンビニなど生活に便利なお店が徒歩圏内の利便性良好な立地です(*^_^*)/

    ★賃貸最新空室情報★
    ☆サンジェルマン3☆
    ■ペット飼育時:賃料+3,000円(2匹時は+5000円)+退去時礼金1ケ月・駐車場1台込・契約時礼金:2ヶ月・月額保証料:550円■お気軽にお問い合わせください(*^_^*)/

    ★賃貸最新空室情報★
    ☆A-STEP城ケ崎ウィークリーマンスリー☆
    ■ついちょるーむ(ケーブルTV、インターネット無料)!!家電(テレビ・冷蔵庫・洗濯機・電子レンジ)が付いているお部屋です。水道光熱費込み。30日69000円で借りることができます!詳細はお問合せください(*^_^*)/

    ★賃貸最新空室情報★
    ☆A-STEP清水ウィークリーマンスリー☆
    家具・家電・Wi-Fi付!電気ガス水道使用量無料☆すぐにご入居できます(*^_^*)/■テレビ・エアコン・冷蔵庫・電子レンジ・洗濯機・テレビ台・カーテン・テーブル・ベッド・座椅子・掃除機・アイロン・電気ポット・姿見・ゴミ箱完備です。日額2,300円、最短1週間~入居可能です(^^)/

    【営業時間変更のおしらせ】
    いつもご愛顧いただきありがとうございます。誠に勝手ながら下記の期間の営業時間を変更させていただきます。
    11月29日(土)9時~17時、11月30日(日)10時~18時
    お急ぎのお客様は
    ☎0985-72-5000
    までご連絡ください
    12月1日(月)より通常営業となります


    ★賃貸最新空室情報★
    ☆BelleLeadCassiya神宮北C棟☆
    ハウスメーカー施工の貸家。インターネット無料(BBIQ)!ペット可能(小型犬)!楽器可能(ピアノ)10:00~20:00まで!設備充実です(*^_^*)/

    ★賃貸最新空室情報★
    ☆芳士貸家☆
    新しいショッピングモールにもアクセス良好で、バス停が目の前、郵便局向かいと生活基盤が整っています(*^_^*)/

    ★賃貸最新空室情報★
    ☆Rassurer Gion☆
    インターネット無料☆オートロック、宅配ボックス、防犯カメラ、浴室乾燥機完備♪徒歩圏内にスーパーやコンビニ、ドラッグストアなどがあり生活に便利な立地です(^^)/全身鏡付きのシューズボックスでお出かけ前の身だしなみチェックにも便利(*^_^*)♪/

    ★賃貸最新空室情報★
    ☆ワンヒルズマンション☆
    共働きの方にもお勧め!リビングと寝室でお使いいただくことや、それぞれのお部屋としてもお使いいただけます。(*^_^*)♪/

    ★売買物件最新情報★
    【高岡町飯田中古】
    家計にやさしい太陽光パネル、蓄電池付き★室内程度良好でリフォームの必要がありません!
    お気軽にお問い合わせください(*^_^*)/


    ★売買物件最新情報★
    【月見ケ丘1丁目中古】
    〇平屋建て住宅〇高台の閑静な住宅地で落ち着いた生活。〇駐車場も4台可能。〇ハウスクリーニング済みで、即入居可です。○雨戸も電自動シャッターになります。〇独立洗面台付き!朝の身支度もスムーズに行えます。
    お気軽にお問い合わせください(*^_^*)/


    ★売買物件最新情報★
    【大字島之内中古】
    ◇1LDKの平屋中古戸建です。バリアフリー設計で使いやすく、静かな環境です。駐車場4台~5台可能!築年数も新しく即入居可!
    お気軽にお問い合わせください(*^_^*)/


    ★売買物件最新情報★
    【大字赤江中古】
    ◇赤江インターチェンジまで396mの近さでアクセス良好です◇宮崎空港まで1217m(徒歩約15分)・田吉駅まで約1377m(徒歩約17分)◇セブンイレブン宮崎飛江田店まで徒歩4分
    お気軽にお問い合わせください(*^_^*)/


    ★売買物件最新情報★
    【高岡町飯田中古】
    家計にやさしい太陽光パネル、蓄電池付き★室内程度良好でリフォームの必要がありません(^^♪
    お気軽にお問い合わせください(*^_^*)/


    ★売買物件最新情報★
    【大塚町無量寺道下中古】
    築浅で状態良好!白とブルーの爽やかなコントラストが映える明るく開放的な空間☆
    お気軽にお問い合わせください(*^_^*)/


    ★売買物件最新情報★
    【下北方町塚原中古】
    オール電化住宅!納戸有り。TVドアホン、シャンプードレッサー、ペアガラスサッシなど設備充実しております。
    お気軽にお問い合わせください(*^_^*)/


    ★売買物件最新情報★
    【高岡町内山福祉施設】
    デイサービスセンター、老人ホーム複合施設として令和5年まで営業居室9室以上、各居室トイレ付きです☆
    お気軽にお問い合わせください(*^_^*)/


    夏期休業のおしらせ
    いつもご愛顧いただきありがとうございます。誠に勝手ながら下記の期間を夏期休業とさせていただきます。
    8月13日(水)~8月17日(日)
    お急ぎのお客様は
    ☎0985-72-5000
    までご連絡ください
    8月18日(月)より通常営業となります

    暑さに負けず、素敵な夏をお過ごしください☆
  • 売却査定・買取
  • LINEでラクラク!物件探し
  • オンライン相談
  • リースバック
  • 私たちの社会貢献
  • CMギャラリー
  • 物件リクエスト
  • スマートフォン
エージェントステップ


  • 会社概要・アクセスアップ
  • 採用情報
  • リンク集
  • 新築、建て売り

この度はセンチュリー21エージェントステップのホームページをご覧いただき、誠にありがとうございます。

センチュリー21エージェントステップでは宮崎市に特化した不動産情報を豊富に取り扱っていますので、 宮崎市内で新築一戸建て、中古一戸建て、土地、マンションなどの不動産物件をお探しのお客様はお気軽にお問い合わせください。

また、不動産の売却や買取りの査定件数は年間700件以上になっており、様々なケースにも対応可能でございます。

お客様に喜んでいただけるよう社員一同、邁進して参りますので、宜しくお願い申し上げます。