クレイドルガーデン宮の元町第1 3号棟
> 宮崎市宮の元町 新築一戸建て
> 3088.00万 / 4LDK
|
不動産/新築一戸建て
クレイドルガーデン宮の元町第1 3号棟
|
宮崎市宮の元町
日豊本線 南宮崎
(
徒歩 18分
)
(
バス 9分
赤江小前 バス停まで徒歩6分
)
(
車 4分 1500m
)
赤江小学校 / 赤江東中学校
|
|
|
●小・中学校まで徒歩約10分以内で、お子様の通学も安心♪●駐車場3台可能●オール電化●耐震装置SAFE365●スーパー、コンビニまで徒歩約10分圏内●南宮崎駅まで徒歩約17分・車で約4分
|
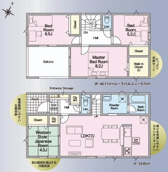
建物/専有 面積 |
98.82m2 (29.89坪)
|
土地面積 |
171.07m2 (51.75坪)
|
築年月 |
2026年4月 (令和8年4月) |
| 駐車場 |
有/3台 |
地上階数 |
2階 |
地下階数 |
- |
|
| 構造 |
木造 |
| 接道状況 |
公道 南 5.00m |
| 用途地域 |
第一種低層住居専用地域 |
| 都市計画 |
市街化区域 |
| 地目 |
宅地 |
| 建ぺい率 |
60% |
| 容積率 |
100% |
| 国土法 |
不要 |
| 計測方式 |
登記 |
| 土地権利 |
所有権 |
|
| 不動産の現況 |
建築中 |
| 入居/引渡 |
期日指定 |
| 引渡年月 |
2026年04月下旬 |
| 取引 |
仲介 |
■小学校までの距離:610m
■中学校までの距離:882m
■建築確認番号:第R07SHC125094号
■\おすすめポイント/
●小・中学校まで徒歩約10分以内で、お子様の通学も安心です♪
●駐車場3台可能
●オール電化、フラット35金利Aプラン適用可能
●耐震装置SAFE365
進学や就職、結婚や住み替えなどお客様の生活の変化に合ったプランご提案をいたします。
ご案内時、現地への送迎なども可能です!
■周辺環境:Foodaly赤江店(629m) / まつの恒久店(1034m) / ファミリーマート恒久店(827m) / ディスカウントドラッグコスモス赤江店(607m) / スーパーセンタートライアル宮崎恒久店(716m) / 宮崎市立赤江東中学校(894m) / 宮崎市立赤江小学校(610m) / 宮崎城ヶ崎郵便局(1217m) / 南宮崎駅(JR 日豊本線)(1408m)
■学校区:
赤江小学校(宮崎市) 赤江東中学校(宮崎市)
|
クレイドルガーデン宮の元町第1 3号棟の特徴・設備
住宅ローンシミュレーション
|
ローンシミュレーション条件
|
ローンシミュレーション結果
| 借り入れ金額 |
30,880,000円 |
月々の返済額
(ボーナス月以外の年10回) |
88,326円/月 |
ボーナス月の返済額 (年2回) |
88,326円/月 |
| 年間の返済額 |
1,059,912円 |
総支払額
(頭金含む) |
37,096,920円 |
- ※元利均等返済方式でシミュレーションしています。
- ※実際のご返済額はその他の条件により計算結果と異なりますので、予めご了承ください。
- ※シミュレーション結果はご返済の目安としてご利用ください。また、将来のお借り入れを約束するものではありません。
|
クレイドルガーデン宮の元町第1 3号棟 周辺地図
クレイドルガーデン宮の元町第1 3号棟 のことならお気軽にご相談ください。